Lot 0036 4040 Aberdeen Way NE | New Homes for Sale in Renton, WA

Est. Completion:
Aug. Move In.
Malcom | Lakeview Terrace

Single Family Home

Est. Loading... /mo

$1,399,990

Buy Now Est. Completion:
Aug. Move In.
  • Square Footage

    2,264 sq ft

  • Bedrooms

    3 beds

  • Bathrooms

    2.5 baths

  • Number of Floors

    3 floors

  • Parking Bays

    2 bays

Lakeview Terrace
4040 Aberdeen Way NE,
Renton, WA 98056

phone icon 425-275-5340
watch icon Sales Office Hours

Sales Office Hours

Monday 10:00 AM - 06:00 PM

Tuesday 10:00 AM - 06:00 PM

Wednesday 01:00 PM - 06:00 PM

Thursday 10:00 AM - 06:00 PM

Friday 10:00 AM - 06:00 PM

Saturday 10:00 AM - 06:00 PM

Sunday 11:00 AM - 06:00 PM

Overview

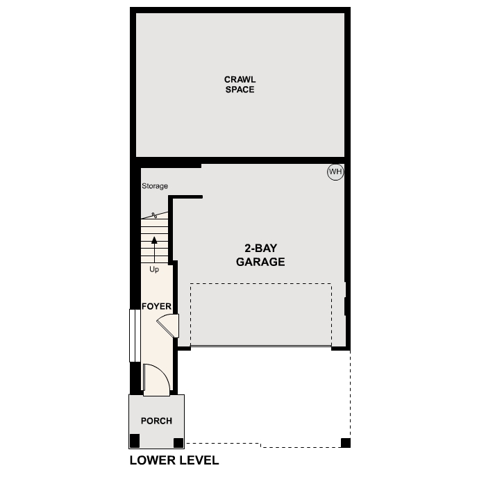
The Malcom at Lakeview Terrace elegantly unfolds over 2,264 square feet of living space. The floor plan’s lower level, home to the two-bay garage, leads up to the main floor. The open-concept design makes it easy to mingle as you relax in the living area, dine in the dedicated dining space, and cook in the spacious kitchen, complete with an island and pantry. The room extends onto a front deck, for seamless indoor-outdoor living. A convenient half bathroom can also be found on the main level. Upstairs, the primary suite serves as a luxurious escape with its own five-piece en-suite bathroom, private deck, and walk-in closet. The two additional bedrooms share a full bathroom, alongside a laundry room, creating a modern lifestyle with both comfort and style.

Interactive Floor Plan

Enjoy a closer look at what this plan has to offer!

Explore homesites at this community!

Get a feel for the neighborhood and find the right homesite for you.

Community Information

Lakeview Terrace

Lakeview Terrace by Century Communities offers thoughtfully designed new homes in Renton, WA, blending modern comfort with an exceptional location. Contemporary open-concept floor plans are paired with sought-after finishes such as maple cabinetry, quartz countertops, and spa-inspired five-piece primary bathrooms—creating homes that feel both stylish and functional.

 

Ideally situated just three miles from Newcastle Beach Park and approximately 12 miles from downtown Seattle, Lakeview Terrace delivers the perfect balance of outdoor recreation and urban convenience. Whether you’re enjoying nearby trails and waterfront parks or heading into the city for dining, shopping, and entertainment, this community makes it easy to enjoy the best of King County living.

 

Contact us today to begin your journey home at Lakeview Terrace.

Community Amenities

On-Site

  • Community Playground
  • May Creek Trailhead 

Nearby Attractions

  • Virginia Mason Athletic Center (.9 miles)
  • The Landing Shopping Center (3 miles)
  • Gene Coulon Memorial Beach Park (3.5 miles)
  • Topgolf - Renton (3.5 minutes)
  • The Golf Club at Newcastle (4 miles)

Top Employers

  • Boeing Renton Factory (3 miles)
  • Wizards of the Coast (3 miles)
  • Kaiser Permanente Renton Medical Center (4 miles)
  • T-Mobile Corporate Office (4.5 miles)
  • Providence Health & Services (6.5 miles)

 

A Location Near It All

  • Newcastle (3 miles)
  • Downtown Bellevue (7 miles)
  • SeaTac International Airport (10 miles)
  • Downtown Seattle (12 miles)
  • Snoqualmie Falls (30 miles)

Schools

Renton School District is a strong local choice for families who value future-ready learning—with opportunities like dual-credit pathways (AP, CTE dual credit, College in the High School, IB, Running Start) and a district focus on helping students graduate “with options.” 

 

For buyers, that translates to a community where schools support college and career readiness, plus programs designed to serve a wide range of learners and goals.

 

For more information:

https://www.rentonschools.us/

 

Hazelwood Elementary: GreatSchools.com Rating (10/10)

https://hazelwood.rentonschools.us/

 

Risdon Middle School: GreatSchools.com Rating (7/10)

https://risdon.rentonschools.us/

 

Hazen Senior High: GreatSchools.com Rating (6/10)

https://hazen.rentonschools.us/

 

 

  • Hazelwood Elementary
  • Vera Risdon Middle School
  • Hazen Senior High School

Shopping and Dining

  • The Landing Shopping Center
    Renton, WA 98057
  • Uwajimaya Renton
    Renton, WA 98057
  • DK Market
    Renton, WA 98057
  • IKEA
    Renton, WA 98059
  • Costco
    Tukwila, WA 98188
  • Westfield Southcenter Mall
    Seattle, WA 98059
  • The Bravern
    Bellevue, WA 98059
  • Bellevue Square
    Bellevue, WA 98057
  • The Melrose Grill
    Renton, WA 98056
  • Water's Table-Renton Restaurant
    Renton, WA 98056
  • Sansonina Ristorante Italiano
    Renton, WA 98057
  • Anchovies and Salt
    Renton, WA 98056
  • Whistle Stop Ale House
    Renton, WA 98059
  • Salty Blue Fish & Chips
    Renton, WA 98056
  • Mori Sushi & Grill by Aji
    Renton, WA 98057
  • The Local 907
    Renton, WA 98056

Homeowner reviews

See for yourself what our Century Communities homeowners are saying about their dream homes!

Request Information

Do You Currently Rent or Own
I'm a realtor required
Schedule a Tour
By clicking “Submit'” you consent to receiving calls and text messages from Century Communities, our affiliates, marketing partners and sales agents at the phone number provided, including messages sent using an automated system. Century Communities' privacy policy can be found at www.centurycommunities.com/privacy-policy. You understand that by providing your information to us, we will reach out to you via the information you provide us. Standard text message rates apply. Users can opt out of text messages at any time by texting STOP. ©2025 Century Communities, Inc.

 

This site is protected by reCAPTCHA.