Aster | New Homes for Sale in Austell, GA

Townhome

Est. Loading... /mo

$384,990

  • Square Footage

    2,234 sq ft

  • Bedrooms

    3 beds

  • Bathrooms

    2.5 baths

  • Number of Floors

    2 floors

  • Parking Bays

    2 bays

Magnolia Square
1217 Farmers Loop Road,
Austell, GA 30106

phone icon 678-217-8330
watch icon Sales Office Hours

Sales Office Hours

Monday - By Appointment Only

Tuesday - By Appointment Only

Wednesday 10:00 AM - 06:00 PM

Thursday 10:00 AM - 06:00 PM

Friday 01:00 PM - 06:00 PM

Saturday 10:00 AM - 06:00 PM

Sunday 12:00 PM - 06:00 PM

Overview

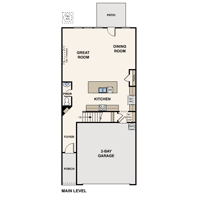
Introducing the Aster at Magnolia Square, one of our two amazing Two-Story Townhome floorplans in this charming new community. The Aster is 2,234 square feet, 3BR and 2.5 Baths. On the Main Level, the open layout includes a Kitchen with Pantry, Dining Room, Mudroom, and Great Room with Optional Fireplace. 

The Second Level offers convenient Laundry, spacious Secondary Bedrooms, and Large Primary Suite and with Private Bath and Walk-In Closet. Find your dream townhome at Magnolia Square!

Interactive Floor Plan

Take a closer look at what this plan has to offer!

Available Homes

Buy online today!

Lock in your dream home through our convenient and completely online Buy Now process.

  • Huge Family Room
    Large Loft Area

    1319 Farmers Loop | Lot 004

    Est. Completion:
    Jul. Move In.
    Aster

    Townhome

    Est. Loading... /mo
    $394,690
    • Square Footage 2,234 sq-ft
    • Bedrooms 3 br
    • Bathrooms 2.5 ba
    • Parking Bays 2 bays
  • Spacious Owner's Suite
    Huge Family Room

    1323 Farmers Loop | Lot 003

    Est. Completion:
    Jul. Move In.
    Aster

    Townhome

    Est. Loading... /mo
    $395,690
    • Square Footage 2,234 sq-ft
    • Bedrooms 3 br
    • Bathrooms 2.5 ba
    • Parking Bays 2 bays
  • Large Owner's Suite
    Spacious Secondary BRs

    1299 Farmers Loop | Lot 008

    Est. Completion:
    Jul. Move In.
    Aster

    Townhome

    Est. Loading... /mo
    $396,690
    • Square Footage 2,234 sq-ft
    • Bedrooms 3 br
    • Bathrooms 2.5 ba
    • Parking Bays 2 bays

Explore homesites at this community!

Get a feel for the neighborhood and find the right homesite for you.

Community Information

Magnolia Square

Welcome to Magnolia Square

Charming New Townhomes in Austell, GA

 

Discover new townhomes for sale in Austell, GA, at Magnolia Square! Enjoy low-maintenance townhome living and modern style at this new Century Communities neighborhood.  

 

Perfectly blending contemporary architecture with timeless appeal, Magnolia Square offers townhomes with spacious, open-concept layouts, designer finishes, energy-efficient construction, and private outdoor living spaces—ideal for anyone seeking a simplified lifestyle without compromising style or comfort.

 

Community Highlights:

  • 3-bedroom townhomes with 2-bay garages
  • Modern finishes such as quartz countertops & LG stainless-steel appliances
  • Close to shopping, dining & well-rated schools
  • Easy access to I-20, I-285 and Hwy 78
  • 18 miles from downtown Atlanta


Austell, GA offers a charming, suburban lifestyle, a mix of local eateries and shops, and proximity to big-city amenities in downtown Atlanta.

Whether you're starting a new chapter or simply looking for a fresh space to call home, Magnolia Square delivers the perfect blend of location, lifestyle, and value.

Community Amenities

Homeowners will enjoy a beautiful Pavilion and convenient Mail Kiosk as a part of the Magnolia Square amenities.

The community is walkable to an amazing International Farmers Market and less than a mile from beautiful Hurt Park. Hurt Park has tennis and basketball courts, a playground and lots of green space to enjoy. 

Just a few miles from the new Milford Recreation Center - https://www.cobbcounty.gov/parks - and Jim R. Miller Park - home of the North Georgia State Fair in September-October - 1220 Al Bishop Drive, Marietta, GA 30008.

Schools

Russell Elementary School, Floyd Middle School, and Osborne High School are all public schools within the Cobb County School District in Georgia, serving students in the Smyrna and Marietta areas.

Russell Elementary School

  • Location: Smyrna, GA. 
  • Grades: Pre-K-5. 
  • Programs: Offers a STEM focus, Dual Immersion, and a Positive Behavioral Interventions and Supports (PBIS) program. 
  • Community:Known for strong community and parental support. 

 

Floyd Middle School

  • Location: In the Cobb County School District, serving the area. 
  • Focus: Emphasizes college and career preparation, with a focus on a positive school climate. 
  • Recognition: A Title I Distinguished School, recognized for being a healthy and STEM-certified school. 

 

Osborne High School

  • Location: In Marietta, GA. 
  • Programs: Offers Advanced Placement® (AP) coursework and a Gifted & Talented program. 
  • District: One of 18 high schools in the Cobb County School District. 

Homeowner reviews

See for yourself what our Century Communities homeowners are saying about their dream homes!

Request Information

Do You Currently Rent or Own
I'm a realtor required
Schedule a Tour
By clicking “Submit'” you consent to receiving calls and text messages from Century Communities, our affiliates, marketing partners and sales agents at the phone number provided, including messages sent using an automated system. Century Communities' privacy policy can be found at www.centurycommunities.com/privacy-policy. You understand that by providing your information to us, we will reach out to you via the information you provide us. Standard text message rates apply. Users can opt out of text messages at any time by texting STOP. ©2025 Century Communities, Inc.

 

This site is protected by reCAPTCHA.